Zimmer: 4
Objekttyp: Erdgeschosswohnung
Baujahr: 2026
Bezugsfrei ab: 01.08.2026
Kaltmiete: 1.195,00 €
Nebenkosten: 230,00 €
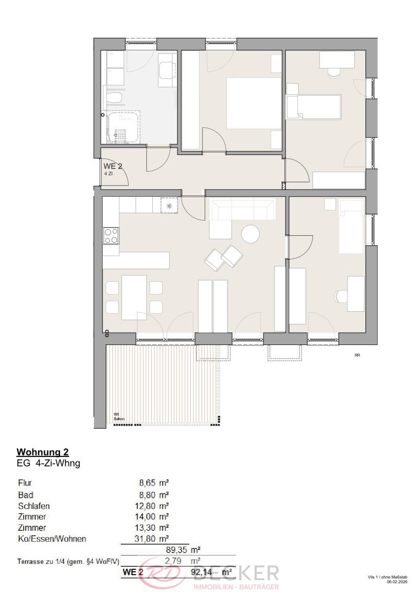
Objektbeschreibung
Hier entsteht ein Zuhause, das modernen Wohnansprüchen ebenso gerecht wird wie dem Wunsch nach Ruhe und Freiraum. Die 4-Zimmer-Wohnung im Erdgeschoss überzeugt mit einem stimmigen Wohnkonzept, privatem Außenbereich und der besonderen Qualität.
Im Mittelpunkt steht der offen gestaltete Wohn-, Ess- und Kochbereich mit rund 31,80 m², der viel Raum für gemeinsames Leben und eine individuelle Einrichtung bietet. Drei weitere gut geschnittene Zimmer eröffnen flexible Nutzungsmöglichkeiten, etwa als Schlaf-, Kinder- oder Arbeitszimmer. Das Tageslichtbad ist mit Dusche ausgestattet und bietet zudem Anschlüsse für Waschmaschine und Trockner.
Ein besonderer Mehrwert ist die ca. 11 m² große Terrasse mit angrenzendem Garten, die ausschließlich dem Mieter dieser Wohnung zur Verfügung stehen. So entsteht ein geschützter Außenbereich mit viel Platz zum Entspannen und Genießen.
Die Wohnung befindet sich derzeit noch im Bau. Die Fertigstellung und der geplante Bezug sind zum 01.08.2026 vorgesehen.


