Beschreibung
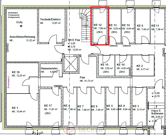
Dieser abschließbare Kellerraum in der Siemensstraße in Dorfen bietet eine unkomplizierte und solide Möglichkeit zur Kapitalanlage.
Der Raum ist dauerhaft zugänglich, trocken und eignet sich optimal zur sicheren Lagerung von Hausrat, Akten oder sonstigen Gegenständen.
Ein besonderes Plus ist der Personenaufzug direkt ins Kellergeschoss – so ist der Keller komfortabel erreichbar, auch mit Kartons oder schwereren Gegenständen. Durch die abschließbare Ausführung ist eine sichere und diskrete Nutzung gewährleistet.
Mit einer Rendite von rund 7,7 % stellt dieses Objekt eine attraktive Alternative zu klassischen Geldanlagen dar, bei vergleichsweise überschaubarem Investitionsvolumen und einfacher Verwaltung.
Provision: Provisionsfrei vom Bauträger!
Kaufpreis: 7.000,00 €
Baujahr: 2018
Zimmer: 1
Wohnfläche: 7.06 m2





